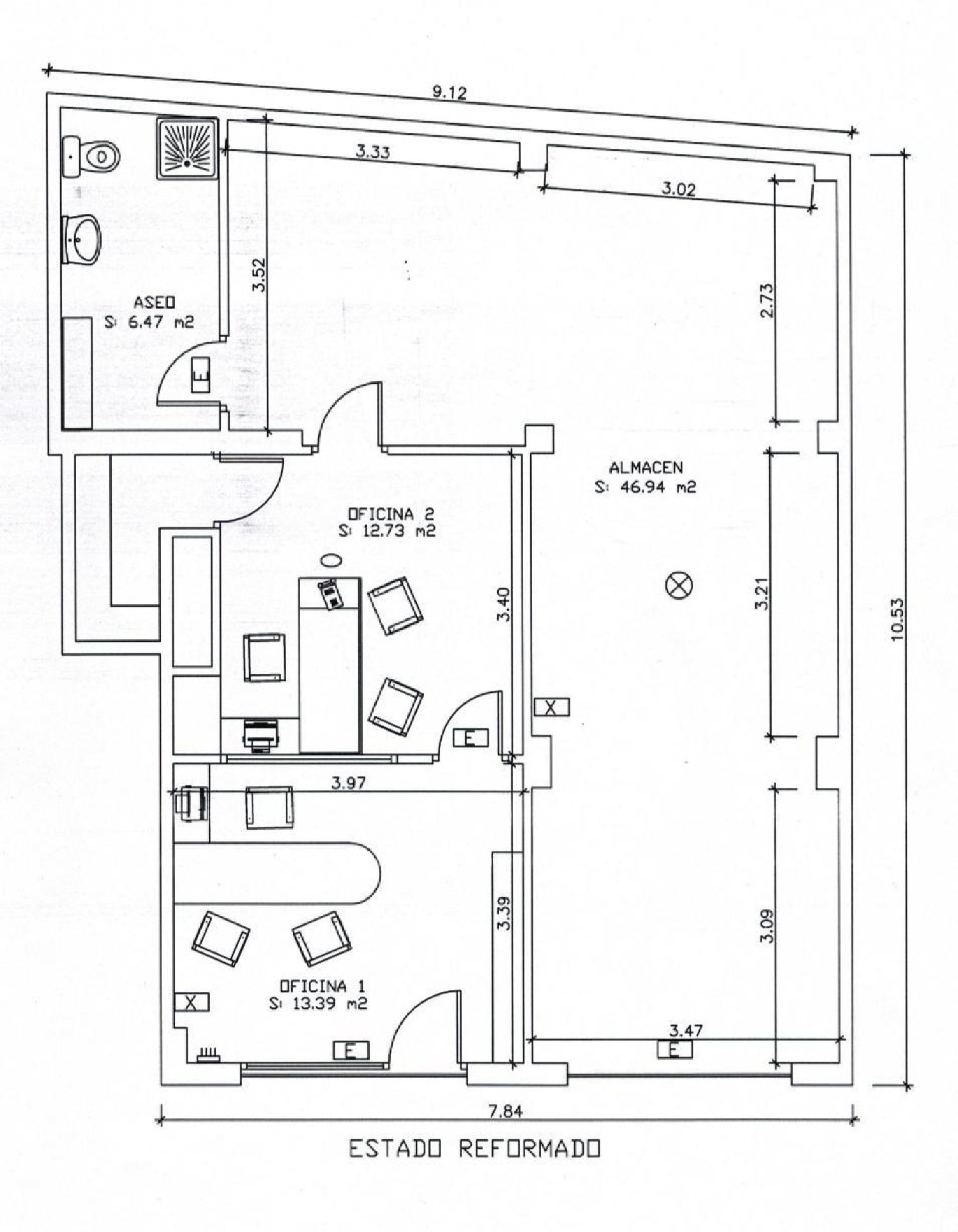
local commercial à vendre Armilla, Vega De Granada
€ 87.000


Vendeur
Agent immobilier | Alquicentro |
Adressse | Plaza de el Campillo 2 ,4D 18009 Granada Espagne |
Évaluation | ★ ★ ★ ☆ ☆ |
🏘️ Voir tous les biens de Alquicentro |
Emplacement approximatif
L'emplacement indiqué sur la carte n'est pas l'emplacement exact du bien. Contactez l'annonceur pour plus de détails précis.
Autres biens à proximité

maison de campagne Órgiva
Alpujarra Granadina
dans un rayon de 20 km
€ 72 000
maison de campagne Órgiva

